Szántó & Mikó Építészek Kft.

Projekt adatok

  • Helyszín: Vecsés
  • Funkció: lakóépület
  • Tervezés: 2025
  • Státusz: kiviteli terv
  • Méret: 167 m2
  • Építész: Dénes Albert, Juhász Kristóf Attila

Projekt leírás

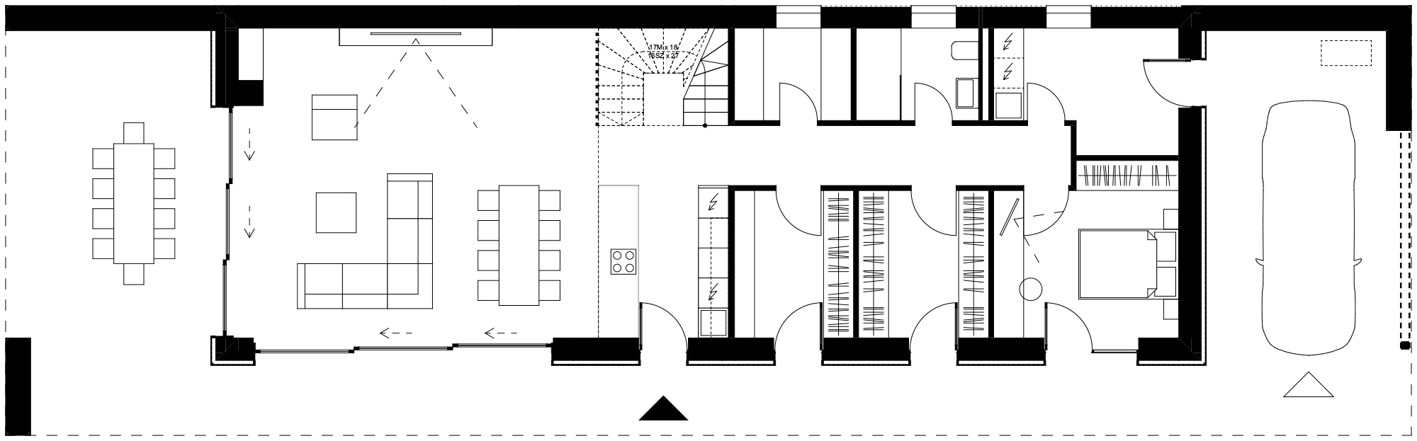
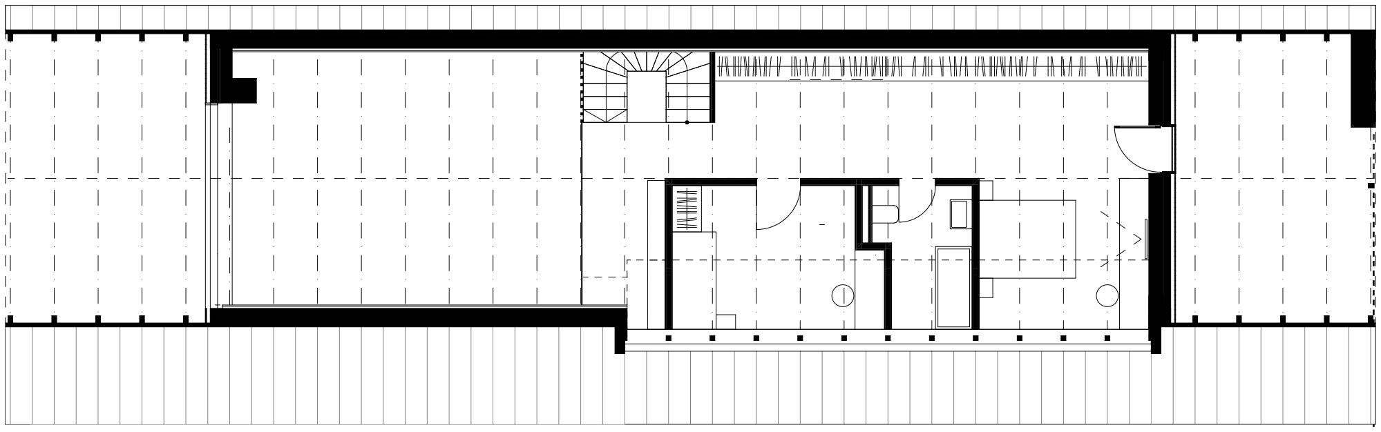
A tervezési helyszín Vecsés Halmitelepen, beépítését tekintve egységes, jellemzően családi házas környezetben van. A környező épületek építési kora és tömegalakítása változatos, de a beépítési magasságuk többnyire a hatályos szabályozáshoz illeszkedi, ami földszintes vagy tetőtérbeéítéses elrendezést jelent. A telek mérete ideális a tervezési program szerinti családi ház elhelyezéséhez: a tervezett beépítés mellett tágas, jól használható zöldfelület marad.

A tervezett épületet a megbízói igénynek megfelelően kétszintes elrendezésű, tetőtérbeépítéses kialakítású. A koncepciót a hagyományos, „hosszú házból” származik mely végül egy egyszerű, az utcára merőleges gerincű nyeregtetős tömeget eredményezett, mely megfelel a szabályozásnak, illeszkedik az épített környezethez és a keskeny, hosszúkás telek előnyeit is természetes módon használja ki. A gépjárműtárolót fedett-nyitott „kocsiszínként” alakítottuk ki és az épület tömegébe integráltuk. A megbízóval egyetértésben nagy hangsúlyt fektettünk a külső és belső terek intenzív kapcsolatára és ebből fakadóan az átmeneti terekre. Az épület hosszoldalán tágas tornác fut végig, összekötve a kertet a belső terekkel és egyúttal természetes módon árnyékolva a déli homlokzatot.

Scroll to Top