Szántó & Mikó Építészek Kft.

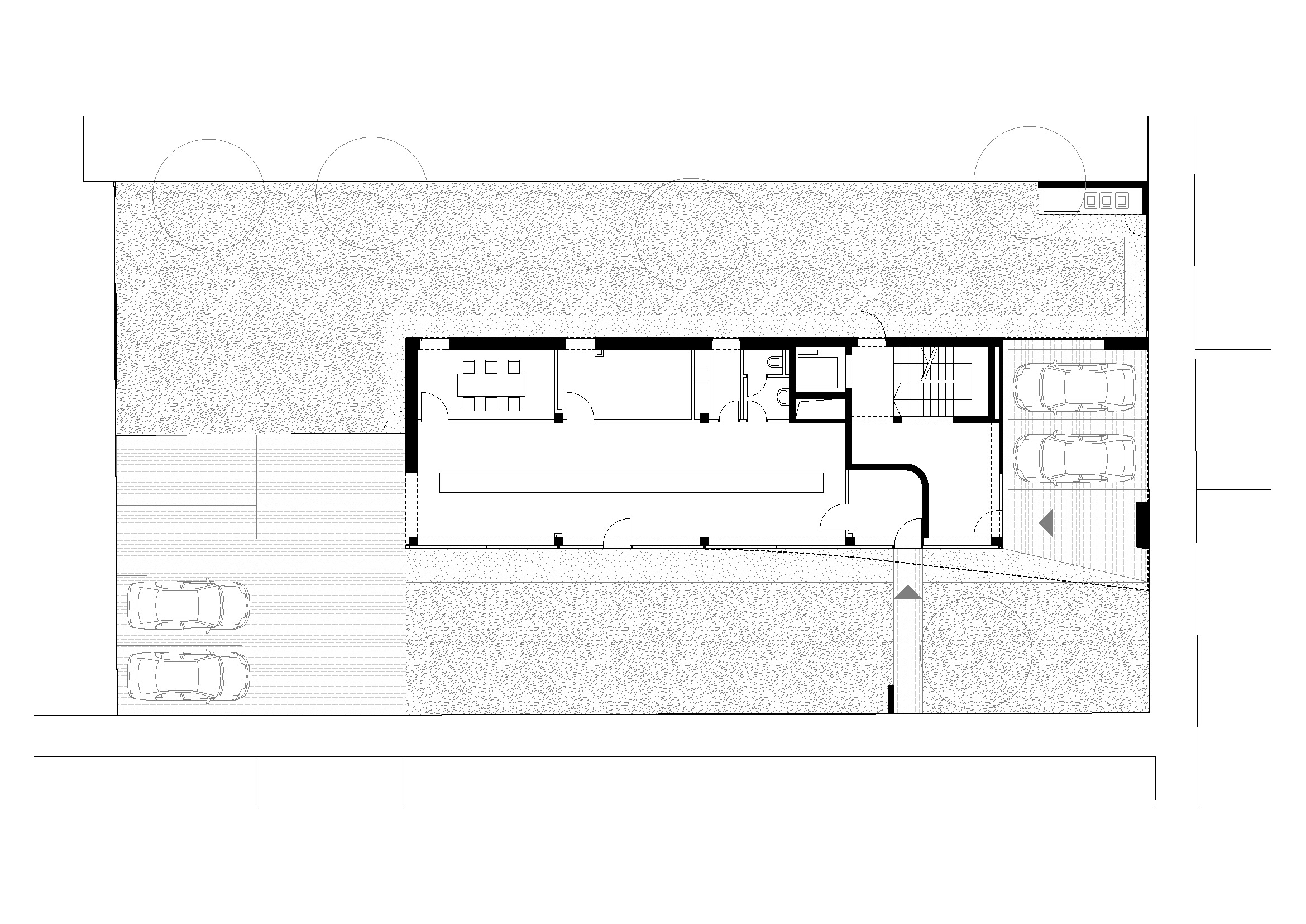
Projekt adatok

  • Helyszín: Budapest XIV. Nagy Lajos Király útja
  • Funkció: lakóépület
  • Tervezés: 2018-2021
  • Státusz: kiviteli tervek
  • Méret: 740 m2
  • Építész csapat: Juhász Kristóf Attila, Gál Róbert

Projekt leírás

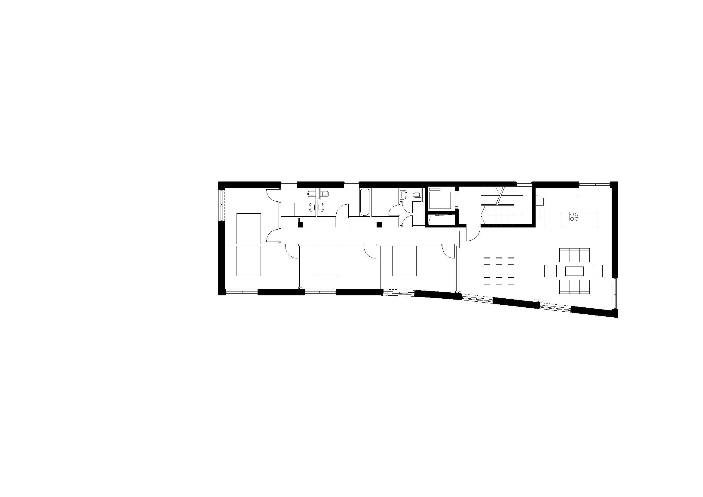
A tervezési helyszín nagyon izgalmas pozícióban van: Zugló egyik legegységesebb területét, a bájos, emberi léptékű „Vitéztelepet” a nagyvárosias Nagy Lajos Király útjától védi. A jelenlegi beépítés nem látja el építészeti feladatát: a „kockaház” a Nagy Lajos király útjának házsorában túl kicsi (mint egy törpe az óriások között), míg a vitéztelep házaihoz képest túl nagy és ormótlan, mint bukott diák a tornasorban.

Tervünk ebben a helyzetben egyértelműen állást foglal: a Nagy Lajos Király útja nagyházaihoz kíván hasonulni: tömegével, gesztusaival ezt a várfalszerű védelmi vonalat szeretné folytatni, egyszerre biztosítva a Nagy Lajos egységességét és a Vitéztelep intimitását.

A tervezett ház részleteiben azonban nem lehet független a telek határhelyzetétől, nem viselkedhet annyira öntörvényűen mint szomszédjai. A tömegnek magabiztos gesztust kell tennie a Nagy Lajos felé, de szelíd, kedves arcot illene mutatnia hátrafelé.

Az általunk tervezett tömeg ezen elvek mentén született: az alaprajzi forma a sarokhelyzetre és a szomszédos családi ház építési vonalára dinamikusan reagál. A földszintet a sarok felől visszahúztuk és körben kikönnyítettük, míg a harmadik emeleti tömeget a Felsőbüki utca és a szomszédos családi ház felől húztuk vissza. Így a lábakra állított háromszintes „fej” a Nagy Lajosnak szól, míg hátrafelé az alaprajzban és magasságban is elfogyó tömeg finoman feloldódik a Vitéztelep fái és házai között.

A homlokzati architektúrát a nagyvonalú gesztusok teszik újszerűvé (ez egyik környezetet sem jellemzi), míg az igényes részletképzés a vitézi házakhoz rokonítja.

Scroll to Top