Szántó & Mikó Építészek Kft.

Projekt adatok

  • Helyszín: Felsőörs
  • Funkció: gazdasági épület
  • Tervezés: 2021-2022
  • Státusz: kiviteli terv
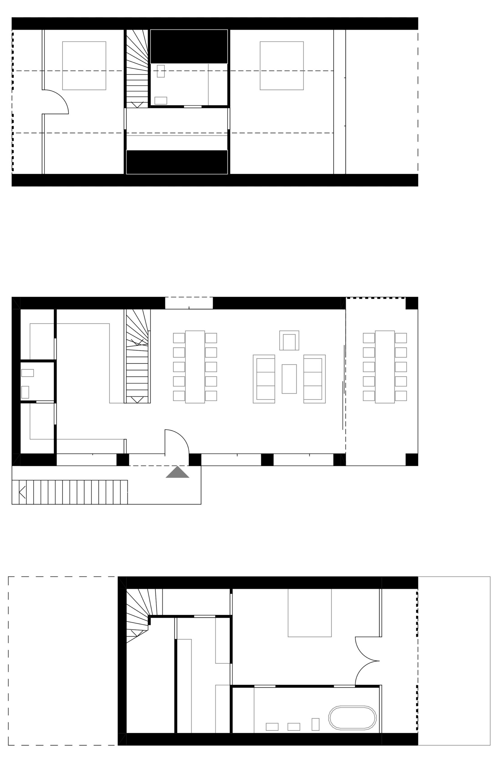
  • Méret: 220 m2
  • Építész: Juhász Kristóf Attila, Gál Róbert

Projekt leírás

A tervezett présházat -hosszas elemzések után- a környező épületektől amennyire lehet távol, de még megközelíthető helyre tettük. A borospince helyét a korábbi tulajdonos által elkezdett és be nem fejezett medenceépítéssel feltúrt telekrészre javasoljuk.

A présház hagyományos, nyeregtetős épülettömegét a hegyoldal esésével párhuzamosan, oromfalával a Csere-hegy és a Somlyó-hegy között feltáruló balatoni panorámára nézve helyeztük el. Az erős esésből adódóan az épület a völgy felől nézve kétszintes, míg a hegy felől csak a tető oromfala látszik. A helyi építészeti hagyományokhoz az épület egyszerű tömegformálásával, a nemes anyagok (kő, cserép, fa) alkalmazásával szeretnénk illeszkedni, de a teraszoknál használt csipke-szerűen áttört kőfelületekkel, valamint a földszint tornácot idéző, egyszerre hagyományos és egyszerre modern oldalhomlokzatával szeretnénk azokat tovább gondolni, a történetet egy rövid mondattal folytatni.

Scroll to Top